就地过年的“品质刚需”需要什么样的户型?| 萌面户型春节版
扫描到手机,新闻随时看
扫一扫,用手机看文章
更加方便分享给朋友
春节将至,“就地过年”成为最近经常提到的热门话题,受新冠疫情影响,今年将有一大波人留在石家庄过年。
特殊的年特殊过,庄里人的过年休闲方式,从线下转到线上,从户外改成室内。很多人学会了独自在陌生城市里找房子、搬家、找工作、过年……
石家庄,那个被称为最幸福的城市,提到过年,很多人都有这方面的苦恼:一家三代人蜗居小两室,过年被客厅打麻将的声音吵得睡不着,蜗居在家没有独立私人空间……换大房子钱不够,小的又不想将就。于是,这样的“品质刚需”小三室,也许是你亟需的。
《萌面户型“就地过年篇”》今天来讲动静分区小三室。
一大家子宅家过年,最迫切的需求便是户型的空间布局与功能性,今天萌仔要展示的户型,都是动静分区布局良好的小三室户型,而且建筑面积在110㎡以下,快来看看都有哪些亮点吧。
排名前列类加分项:连通大阳台
小三室空间,也可以讲究生活享受与尺度感,过年宅家宜动宜静,大阳台巴适滴很。
东原启城建筑面积约97㎡紧凑型小三室与万科翡翠书院小三室的户型结构非常相似。三开间朝阳+动静分区+南北通透,过年宅家阳光有了,家人之间互不打扰。值得惊喜的是,两个个户型客厅阳台连通南向卧室,翡翠书院的南向阳台面宽达到了约6.7米,空间感与视野大大提升。
东原启城更是将平米数降到了100平以下,客餐厅一体,连通阳台面面俱到,要知道市面上这样的户型结构大多为120㎡左右,这样的好处在于让这个产品总价变低了,刚需一族够得着。


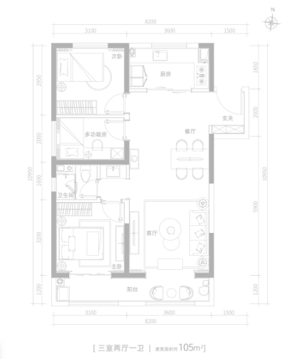
当代府MOMΛ建筑面积约105㎡小三室的设计,同样的南向通体大阳台,西侧为静区,东侧为动区,比较突出的特点是厨房尺度感强,面宽约3.6米,开敞厨房,妻子做年夜饭时扭头就能看到一家人其乐融融的场景,增添了全家人的社交互动。
而且三个卧室窗户朝向不同,南侧、北侧、西侧,几乎饱览整个园区风景。过年期间住在这样的房子里也是非常惬意了。

第二类加分项:双阳卫+套房设计
在建筑面积约110㎡以下面积段的小三室,能做到双卫带套房的并不多见,做到双阳卫带套房的就是“神户型”了。润江云玺的这个小三室,亮点非常多。西侧玄关、餐厨、客厅、阳台,一气呵成,形成归家动区,东侧休息区三个卧室布局规整,典型的鱼骨户型。
户型亮点:
1、双卫生间,都带窗。
2、主卧私属套房。
这样的户型设计真的太赞了,独立套房,过年在家睡到自然醒,这样的“主卧小家”+双阳卫设计,在这个面积段也是很少见的。
第三类户型:三开间朝阳 均好户型
还有一种比较常见的小三室户型设计,户型优势明显。整体来看户型设计都比较方正布局开阔,餐厨一体,客厅有独立阳台,入户一眼望去很敞亮。
两个卧室都在南面,充足的采光面积,适于北方这个寒冷的冬季。房间结构方正通透,空气对流性很好,而且还做到了动静分区,想象一下家里孩子们在客厅玩耍,声音再大也不会影响你的休息,实乃可贵。
下面几个户型堪称小三室多胞胎,户型设计比较相似。合理布局流畅的动线,不仅提高了户内使用空间,而且居住起来很舒适。

今年过年,你要pick哪一个小三室呢?
结语:
过年在家,拥有上述任何一个小三室,都会很巴适。石家庄人过年在家,我又“沾”了。
减面积、强功能,为石家庄人心心念念的小三居提供了更多新亮点。开阔独立的家庭核心区,客厅、餐厅、厨房同面宽一体化设计,无论是烹饪、刷剧、亲子游戏,都可以创造多元的生活场景。独立小家套房设计、开敞式厨房、通体大阳台,让7*24小时小家变大。
经济、舒适、宜居、流线合理的小三室,才是过年的必备啊。
责任编辑:王萌
本文内容仅代表作者立场和观点。本文著作权归搜狐焦点所有。未经允许,严禁转载;经允许转载或使用本文时,请注明来源。获得转载授权请联系:focuskf@vip.sohu.com。
声明:本文由入驻焦点开放平台的作者撰写,除焦点官方账号外,观点仅代表作者本人,不代表焦点立场。




